0
Skip to Content
About Us
Floor Plans
All Floorplans
Single Section
Double Section
Triple Section
Tiny Homes
ADU
Gallery
Model Homes
Inventory
Wholesale
Contact
3D Tours
Get Started
Open Menu
Close Menu
Open Menu
Close Menu
About Us
Floor Plans
All Floorplans
Single Section
Double Section
Triple Section
Tiny Homes
ADU
Gallery
Model Homes
Inventory
Wholesale
Contact
3D Tours
Get Started
About Us
Folder:
Floor Plans
Back
All Floorplans
Single Section
Double Section
Triple Section
Tiny Homes
ADU
Gallery
Model Homes
Inventory
Wholesale
Contact
3D Tours
Get Started
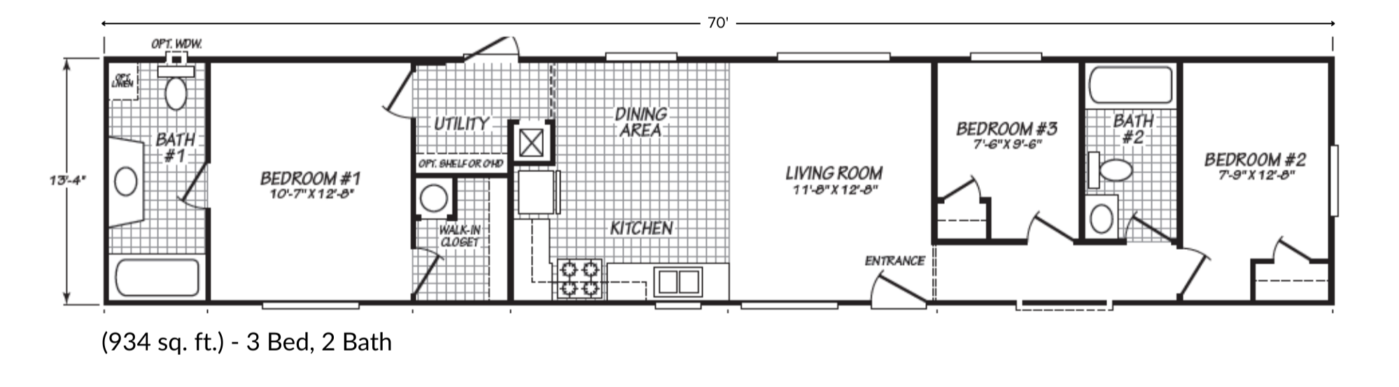
View fullsize
Broadmore 14663B - 2
Sq FT:
934
Beds:
3
Width:
13’4”
Length:
70”
Baths:
2
Get Quote